Helping Our Canadian Partner: Bring a Smart Tub Screen to The Category

Welcome to the WakeBath – where product ideas meet real-world execution.
Today we’ll take you through a case study with one of our Canadian partners who wanted a multi-functional bathtub screen for space-limited bathrooms.

Client’s Vision

Our client was developing a new line of condos and small homes.
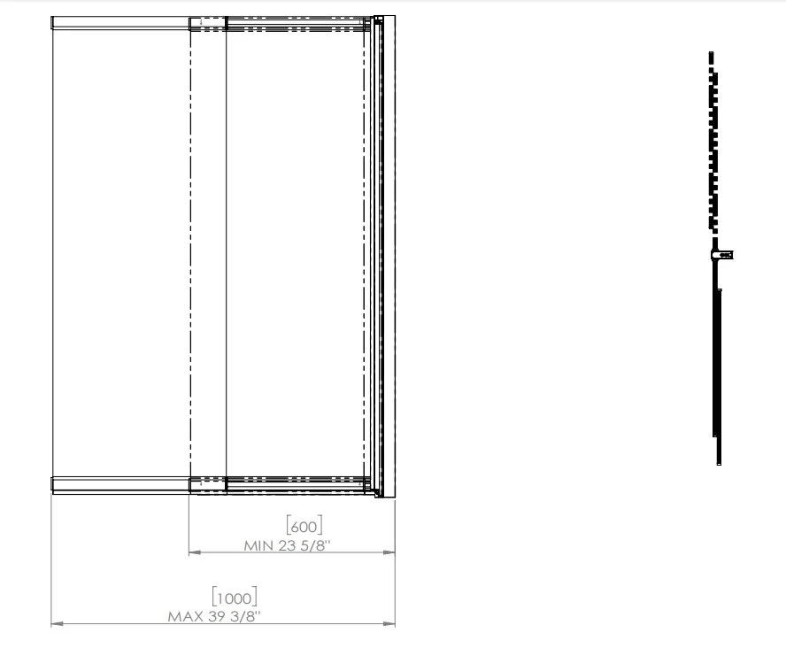
They needed a smart tub screen that could: extend to cover a larger splash zone.

  • Could pivot for flexible use, an

  • d fold away against the wall when not in use.

Their team had the idea; our job was to bring it to life.

Our Process

1.Design Collaboration:
Using 3D CAD tools, our engineers worked alongside the client’s designer to refine the concept. We proposed:

  • A sleek aluminum profile for strength and elegance.

  • A silent, smooth pivot system tested for longevity.

  • Easy-install wall profile with adjustment.

2. Rapid Prototyping:
We built a working sample within 20 days.
The client reviewed it, offered feedback, and we made small but meaningful adjustments – especially around:

  • Glass sealing and water protection.

  • The screen’s return-to-wall function.

  • Ease of handling for DIY installations.

3. Production & Delivery:
With everything approved, our factory kicked off a small batch run to support their launch.
Our quality control team monitored every step, ensuring:

  • Consistent hardware finish.

  • Smooth sliding and folding action.

  • Proper protective packaging for sea freight.

Impact

  • The product helped the client win several condo renovation contracts.

  • It’s now featured in their 2024 product catalog.

  • The client considers us their go-to innovation supplier in China.

Closing Note

If you’re a brand, distributor, or project developer looking for innovative bath solutions, WakeBath is here to collaborate.
Let’s make your next big product together.

Keywords:
Foldable tub screen supplier, pivot glass screen for bathtub, Canadian bathroom supplier support, space-saving bath design, China OEM bathroom product partner, minimalist bathroom solutions, B2B bathtub screen manufacturer.

Previous
Previous

How do tariffs affect different segments of the kitchen and bath market 2025

Next
Next

​Introducing the A167 Series Ultra Slim Frame Double Sliding Shower Door